Savaria与建筑师、建筑商、承包商、设计师、物业经理以及其他行业的专业人士合作,共同创造无障碍的商业和住宅空间。 通过经销商网络,我们在网站上提供了许多有用的工具和资源。 无论是奢华规格,标准规格,还是介于两者之间的要求,我们都可随时为您打造无障碍设施。
Savaria提供了一系列时尚的选项,为您定制合适的家用电梯和商业电梯。 使用我们的家用电梯配置器,查看多种选项和组合。 可以提供商业产品比色表。 如有需求,可定制颜色和其他选项。
开启无障碍通行新世界
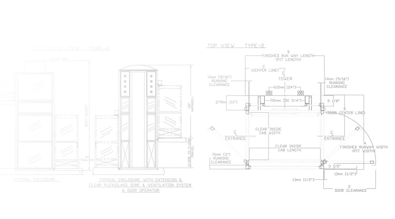
我们的交互式产品指南展示了Savaria®轮椅电梯和LU/LA电梯配件,包括投票模块、规格选型,以及能跳转到建筑信息模型和CAD绘图的快速链接。您可以访问所需要的工具,根据实际情况,选择相应的功能添加到您的项目。
为您的客户提供满意的无障碍通行体验




